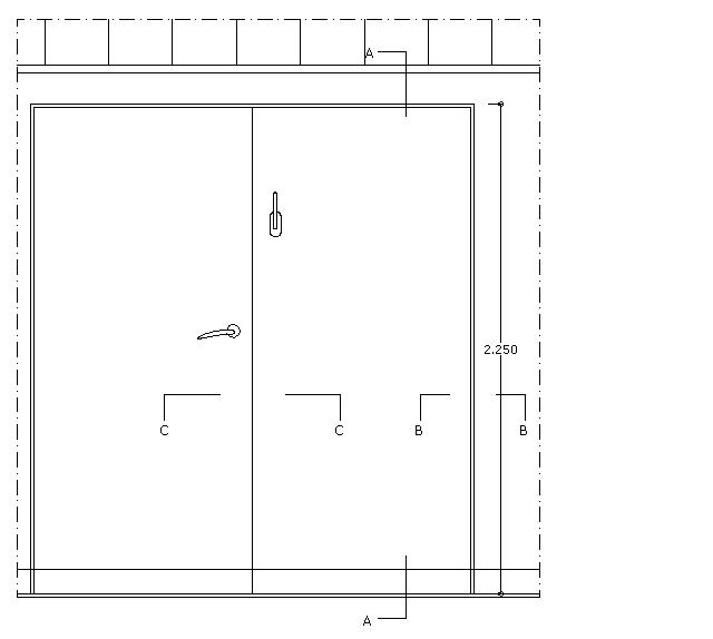
Pormenor Construtivo - Porta

Pormenor Construtivo - Porta
AutoCAD

ficheiro_dwf

ficheiro_dwg

rollover

imagem do livro


Alçado

Corte_AA

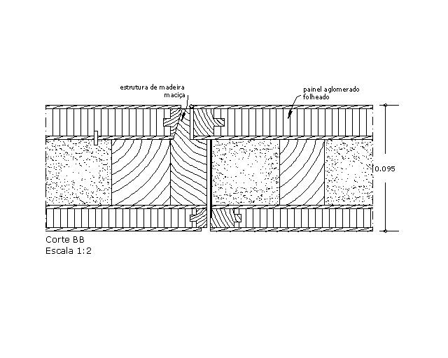
Corte_BB

Corte_CC